Beweissicherung
Sichern Sie sich gegen ungerechtfertigte Schadenersatzforderungen ab.
Warum Beweissicherung?
Im Baurecht hat die vorsorgliche Beweissicherung vor Baubeginn für alle Beteiligten eine erhebliche Bedeutung.

Welcher Umfang?
Die Beweisaufnahme sollte die speziellen Risiken und Anforderungen der jeweiligen Maßnahme berücksichtigen.

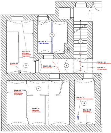
Hier ein Beispiel: Teilabbruch des mittleren Gebäudes sowie Neubau.
- Aufnahme der Fassaden von außen, sowie innen die direkt angrenzenden Wohnbereiche, sowie Treppenhaus und Keller
- Aufnahme der Fassaden von außen
- Aufnahme der Fassaden von außen
- Aufnahme der Fassaden von außen
- Aufnahme des Straßenzustandes
- Aufnahme des Straßenzustandes
Dokumentation
Ziel der Dokumentation ist die detaillierte und verständliche Darstellung des Istzustandes. Damit soll für eventuelle Streitfälle eine nachvollziehbare und beweiskräftige Grundlage geschaffen werden.
Berichterstattung
Detaillierte Skizzen



Fotodokumentation




Nachbegehung
Die Nachbegehung dient zur Abgrenzung gegenüber nachfolgenden Maßnahmen und der Abschlussdokumentation. Sie kann im kompletten Umfang der Beweissicherung oder in Teilbereichen durchgeführt werden.
Dabei wird der Zustand vor der Baumaßnahme (Beweissicherungsgutachten) mit dem Istzustand nach Abschluss der Maßnahme verglichen.